

Architekt: Walter Brune, Baujahr: 1965-67
Quelle: Erica Hofmann, Wiesbaden, aus:
Holger Pump Uhlmann, Vom Kaufhaus zur Stadtgalerie, Jovis Verlag GmbH, Berlin, 2011, S. 54 u. S. 58


Quelle: Architekturbüro Walter Brune, Düsseldorf, aus:
Holger Pump Uhlmann, Vom Kaufhaus zur Stadtgalerie, Jovis Verlag GmbH, Berlin, 2011, S. 60 - 61
ZWEITER NUTZUNGSZYKLUS
AUSGANGSLAGE WARENHAUS KARSTADT WANDSBEK
Das Grundstück des ehemaligen Karstadt Warenhauses in Hamburg Wandsbek befindet sich im ökonomischen Zentrum des Stadtteils Hamburg-Wandsbek zwischen Wandsbecker Markstrasse, Königsstrasse und Quarree. Westlich grenzt das Grundstück an einen poröse Blockstruktur mit Gewerbe- und Wohnnutzungen, nördlich an eine aufgelockerte Struktur mit Zeilenbauten und Wohnnutzung, sowie im Osten an das Quarree-Einkaufszentrum. Im Süden grenzt der älteste Gebäudeteil an die Wandbecker Marktstrasse mit Übergang zum benachbarten zentralen Omnibus Bahnhof und zur U-Bahn. Neben dem Warenhaus sind das Einkaufszentrum, der Wandsbeker Wochenmarkt und ein auf Sportartikel spezialisiertes Warenhaus die übergeordneten Handelsnutzungen des umliegenden Quartiers.
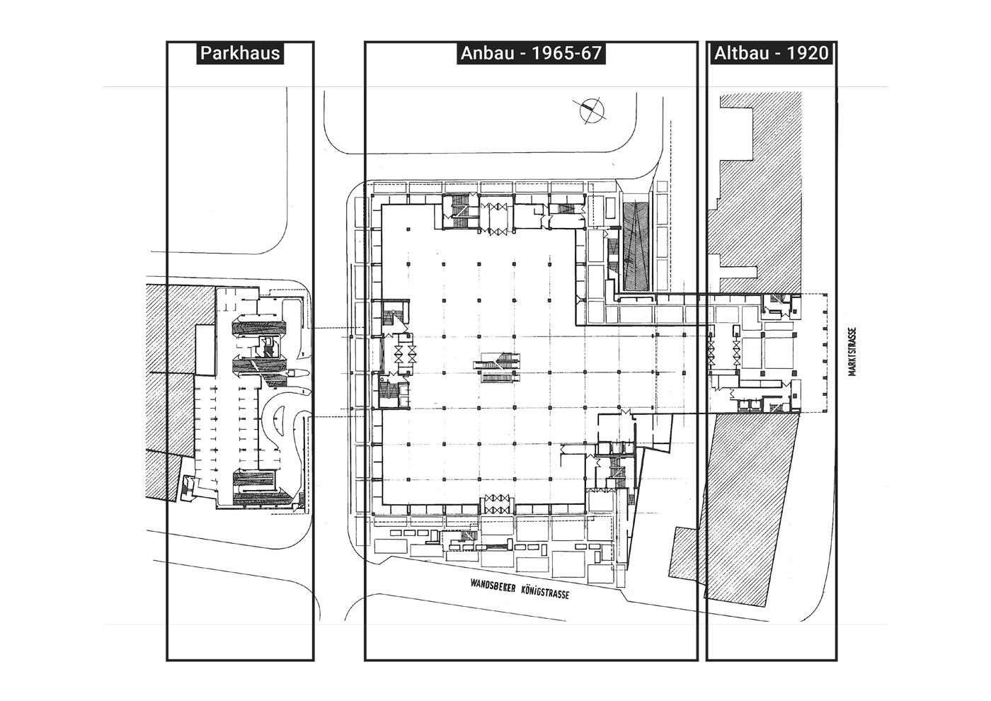
Das Gebäudeensemble des GALERIA-Karstadt-Kaufhof Warenhauses gliedert sich in drei Gebäudeteile, welche durch Übergänge miteinander verbunden sind. Entlang der Wandsbeker Marktstrasse bildet ein Bau aus den frühen 1920er Jahren den ältesten Gebäudeteil. Mitte der 1960er Jahre wurde der Altbau durch einen Erweiterungsbau im rückwärtigen Grundstücksteil, sowie ein Parkhaus ergänzt. Der entwurfsverfassende Architekt war Walter Brune.
Der nachfolgende prototypische Testentwurf zur Umnutzung des Gebäudes zu einem hybriden Produktionsraum beschränkt sich auf den Erweiterungsbau. Zum einen lässt sich dieser sowohl konstruktiv, als auch in der Erschließung sinnvoll vom Altbau trennen. Des Weiteren weist der Erweiterungsbau die generischen Merkmale eines Nachkriegs-Kaufhauses auf. Diese Repräsentativität soll eine Übertragbarkeit der Studienergebnisse auf weitere Gebäude ermöglichen. Einzelne Aspekte wie die Verwendung eines Skelettbaus, von Fertigteilen für die Fassaden, einer Grundrisstiefe von circa 80 Metern, eines Parkplatzes auf dem Dach sowie einem zentralen Rolltreppenkern und flankierenden sekundären Erschließungen entlang der Fassaden sind an weiteren Standorten in ähnlicher Form wiederzufinden. Für das Kaufhaus in Hamburg Wandsbek kommt jedoch hinzu, dass der Altbau entlang der Wandsbeker Marktstrasse den adressgebenden Gebäudeteil für das Ensemble darstellt. Der für den Testentwurf genauer betrachtete Mittelbau weist in seiner Struktur und den Grundrissen keine spezifische Ausrichtung auf.
„Die Außengestaltung verdeutlicht zwei signifikante Trends der Warenhausarchitektur der 1960er Jahre infolge einer zunehmenden Ökonomisierung des Einzelhandels und des Bauwesens: zum einen die starke Differenzierung der Fassaden in ein allseitig transparent gestaltetes Erdgeschoss und darüber befindliche, nach außen nahezu vollständig verschlossene Obergeschosse. Zum anderen die zunehmende Verwendung vorgefertigter Bauteile im Sinne eines funktionalistischen Zweckbaus“.[1] Der Skelettbau spannt auf drei Obergeschossen und einem Untergeschoss freie Verkaufsflächen auf. Die Obergeschosse kragen dreiseitig über dem Erdgeschoss aus und bilden eine Überdachung entlang der Schaufenster. Zur effizienten Ausnutzung sind die sekundären Erschließungen und Nebenräume als kompakte Kerne entlang der Fassaden ausgeführt. Zwei Treppentürme sind den Fassaden vorgestellt und dienen der städtebaulichen Akzentuierung. In gegensätzlicher Gestaltung ist der Treppenkern am Haupteingang an der Königsstrasse vollständig verglast, während das Fluchttreppenhaus an der östlichen Gebäudeseite aus geschlitzten Betonfertigteilen ausgeführt ist. Im achsen-symmetrischen Zentrum der Geschosse dienen Rolltreppen der primären Erschließung. Die vorgehangene Fassade aus Betonfertigteilen ist weitgehend geschlossen. Die Warenanlieferung erfolgt über eine Rampe zum Untergeschoss an der östlichen Gebäudeseite. „Im Wandsbeker Karstadt-Gebäude zeigen sich die Tendenzen der Einzelhandelsbauten jener Jahre zur weitläufigen Ausdehnung sowie zur zunehmenden Abschottung ihrer Innenräume nach außen“.[2]
[1] Holger Pump Uhlmann, Vom Kaufhaus zur Stadtgalerie, Kapitel: „Städtebauliche Problematik – Kaufhäuser in gewachsenen Innenstädten“, Jovis Verlag GmbH, Berlin, 2011, S. 55 - 56
[2] ebda. S. 57


Kerngebiet Hamburg Wandsbek
Im umliegenden Gebiet zum Karstadt Wandsbek weist der Stadtteil
vier Gewerbegebiete mit anteilig produzierendem Gewerbe aus
Quelle (10/2020)
.




KOLLABORATIVES ARBEITEN
KAUFHAUS UTOPIA ALS URBANER EXPERIMENTORT FÜR PRODUKTION
Kaufhaus Utopia ist ein Testentwurf eines urbanen Experimentraums, in dem das zirkuläre Wirtschaften auf lokaler Ebene getestet werden kann. Zirkuläre Wirtschaftskreisläufe auf lokaler Ebene erfordern polyfunktionale Stadträume, in denen Alltägliches entwickelt, produziert und repariert werden kann. Als hybrider Stadtbaustein sollen die Flächen des Kaufhaus Utopia vor allem dem produzierenden Gewerbe und verwandten Akteur*innen zugänglich gemacht werden. Dabei gilt es, möglichst flexible Raumanordnungen zu generieren, in denen im Sinne eines Real-Labors Anpassung jederzeit möglich sind. Die beschriebene Versuchsanordnung stellt keinen starren Grundriss und Umbau dar, sondern ist vielmehr als Ausgangssituation zu sehen, mit dem ein Aushandlungsprozess über lokale Stadtentwicklung beginnt. Das Ziel eines solchen Prozesses ist, urbane Räume in ihrer Resilienz zu stärken und gesellschaftliche Transformation in verschiedenen Maßstäben zu vermitteln. Dazu gilt es, Teilhabe zu ermöglichen und das Kaufhaus Utopia als öffentlichen Innenraum zu verstehen.

ANKOMMEN, ZUSCHAUEN, MITMACHEN, WEITERBAUEN
Das verglaste Erdgeschoss diente dem Warenhaus als Schaufenster und Werbefläche. Für das Kaufhaus Utopia werden die Trennwände der Schaufenster rückgebaut, um einen tiefen Einblick in den Grundriss und die darin liegenden Funktionsbereiche zu ermöglichen. Analog zu Warenhäusern soll die Möglichkeit, das gesamte Gebäude zu Besuchen weiterhin bestehen. Damit die Parallelität von Arbeitsprozessen und öffentlichem Ort gegeben ist, werden verschiedene Raum-Werkzeuge eingesetzt, um die Arbeitsplätze nach den jeweiligen Anforderungen auszustatten.Beispielhafte Funktionsbereiche sind von großzügigen freien Arbeitsflächen umgeben. Das Gebäude wird als Werkraum gesehen, in dem vor allem freie Flächen, denen keine spezifische Nutzung oder Nutzer*innen zugewiesen sind, das transdisziplinäre Arbeiten unterstützen. Damit ein niedrigschwelliger Zugang zum Experimentraum gewährleistet ist, sollen definierte Funktionsbereiche möglichst transparent an die Freiflächen angrenzen. Die Gliederung nach Arbeitsprozessen, Werkzeugen und Atmosphären unterscheidet die Werkräume des Kaufhaus Utopia von konventionellen Raumaufteilungen. „Viele sprechen davon, dass wir -online leben-, doch im Alltag trifft das nicht zu. Unser Wirtschaftsleben findet überwiegend in der realen Welt statt mit Ziegeln und Mörtel, Lebensmitteln und Kleidung, Autos und Häusern“.[1] Die realen Arbeitsumgebungen und Werkstoffe werden jedoch vermehrt durch digitale Produktions- und Verarbeitungsmethoden unterstützt.
Die Struktur des Bestandsgebäudes führt aufgrund der großen Geschosstiefe zu unterschiedlich gut belichteten Flächen. Nicht alle Prozesse benötigen jedoch eine natürliche Belichtung. Durch zunehmend digital gesteuerte Produktionsverfahren wie dem 3D-Druck, der CNC- und Laserbearbeitung et cetera, bilden sich vermehrt Werkräume, dessen Charakter eher an Labore erinnern. Präzisere Verfahren verringern die Emission von Lärm und Schadstoffen und benötigen aufgrund kompakter Maschinen weniger Aufstellflächen. Perspektivisch ist anzunehmen, dass zum Beispiel die Herstellung eines Fahrradrahmens in einem digitalen, additiven Produktionsverfahren erfolgen kann.[2] An der gleichen Maschine kann ebenso auch eine medizinische Prothese erstellt werden. Die zunehmende Präzision durch digitale Fabrikation ermöglicht auch die Vergemeinschaftung der Maschinen, da diese von sehr unterschiedlichen Akteur*innen gemeinschaftlich genutzt werden können. Dabei wird berücksichtigt, dass ein Produkt oder Werkzeug nur für einen begrenzten Zeitraum genutzt wird.[3]
Durch die Mobilitätswende werden Flächen für fahrenden und ruhenden Verkehr neu verhandelt. Parkhäuser, die vormals dem einfließenden Verkehr im Stadtzentrum als Parkplätze dienten, werden perspektivisch flexibler einzusetzen sein. Intermodale Verkehrskonzepte sollen Individualverkehr verringern und Pendler*innen- und Besucher*innen-Verkehr frühzeitig auf öffentliche Verkehrsmittel transferieren. Die Mobilitätswende zeigt auch, dass der Flächenbedarf für den ruhenden Verkehr drastisch reduziert werden muss. Die Dachfläche der Wandsbeker Filiale wird im Rahmen des Testentwurfs von der bisherigen Nutzung als Parkplatz entbunden. Lastreserven, die zuvor für PKW vorgehalten wurden, können so zum Weiterbauen des Gebäudes genutzt werden. Der dargestellte Dachaufbau verfügt über eine transparente Hülle und kontrastiert zum tiefen Grundriss der Obergeschosse.
[1] Chris Anderson, Makers - Das Internet der Dinge: die nächste industrielle Revolution, Carl Hanser Verlag, München, 2013, S. 36[2] Vgl.: ebda. S. 71-86
[3] Vgl.: Sabine Oberhuber, Thomas Rau, Material Matters, Econ Verlag, Berlin, 2. Auflage 2019, S. 101 – 105






Die Geschossflächen werden über raumhaltige Möbel (neue Zutaten) gegliedert und ermöglichen kollaboratives Zusammenarbeiten.
Vielfältige Nutzungen können temporär oder verstetigt in dafür ausgestatteten Bereichen angesiedelt werden.
